The Betsy Carlton

 

Miami Beach, Florida | with Shulman + Associates

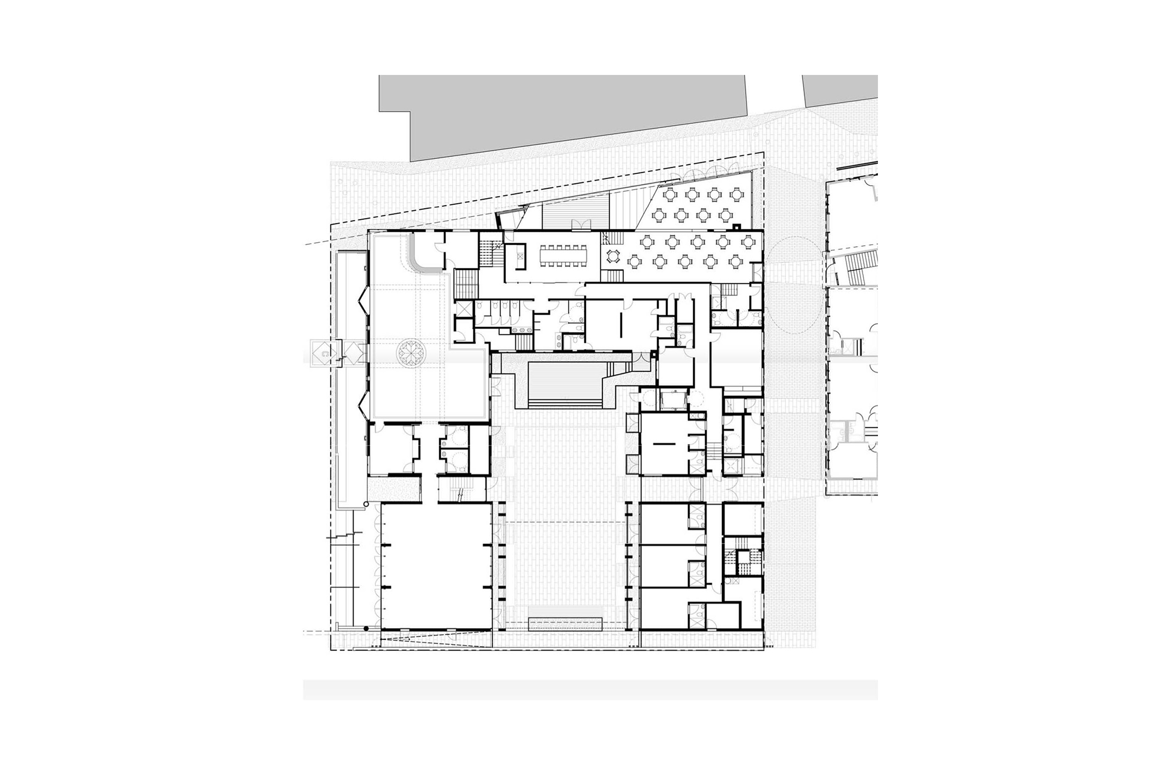
The Carlton, a thriving boutique hotel in South Beach is expanding into the Betsy Hotel beyond, and adding several layers. This project involved the preservation and rehabilitation of the historic hotel building, and the addition of new structures on the northern and southern portions of the site as well as on the roof.

Revitalization and reuse of the alley are also drivers of the project. A new pedestrian bridge spanning the alley will connect the two hotels. The current project would add approximately 15,000 SF. The Hotel is a contributing historic structure in the Miami Beach Architectural District (NR 1979) and the Ocean Drive/Collins Avenue District (City of Miami Beach, 1986). The current project proposes the preservation and restoration of the existing historic façades, especially the Collins Avenue façade. Also, the historic lobby will be refurbished and the courtyard pool removed. Interior alterations in the private room areas will accommodate new programmatic elements including a cafe, retail, boardrooms and back-of-house. The front and back wings of the building will be extended southward to create additional rooms and suites.

A rooftop pool and deck will span the new structures. The existing 14th Place alleyway will become a highly activated pedestrian thoroughfare connecting Espanola Way and Lummus Park. A new cafe will extend into an unused portion of the lot facing 14th Place, reinforcing the pedestrian walkway. The pedestrian bridge connecting the two Hotels is encased in a mirrored sphere, a piece of public art in an unexpected place.

Awards:

2017 AIA Miami Divine Detail Award

2017 Better Beach Awards - Innovative Architecture, Platinum

2017 Better Beach Awards - Historic Preservation, Silver

2017 Conde Nast Gold List

2017 Miami Hospitality Design Awards - Judges' Award for Extraordinary Placemaking

2017 Miami Hospitality Design Awards Outside Divine Detail

 

Photographs by Emilio Collavino and Robin Hill